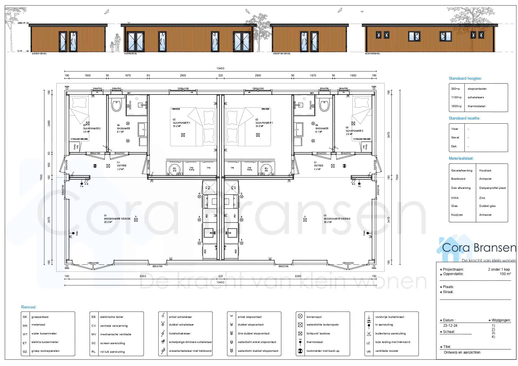
Een compacte en praktische twee-onder-een-kapwoning die aan al jouw wensen voldoet!
Ruimte en comfort in 50 m² per woning:
2 comfortabele slaapkamers
Een stijlvolle badkamer
Een gezellige woonkamer en moderne keuken
Geschikt voor diverse doeleinden:
Zorgboerderijen: Een veilige en huiselijke plek.
Campings: Luxe accommodatie voor een unieke beleving.
Vakantieparken: Compact, functioneel en aantrekkelijk!
Deze woningen zijn ook geschikt voor verhuur aan minder validen, waardoor ze veelzijdig inzetbaar zijn en tegemoetkomen aan diverse woonbehoeften.



